Berlin:
Mit den Kleinen im eigenen Garten spielen

Objekt-Nr.: 74143-585

Preis:
582.500 €

Wohnfläche ca.:
130 m²

Grundstück ca.:
520 m²

Zimmeranzahl:
4

Objektbeschreibung

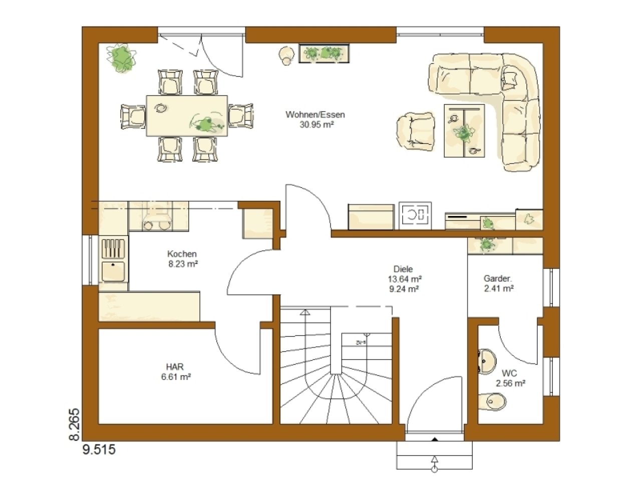
Dieses Einfamilienhaus, hier mit drittem Giebel versehen, ist das Aushängeschild zeitlos klassischer Architektur. Der dritte Giebel bringt nicht nur Platz, sondern auch zusätzliches Tageslicht in die Räume des Dachgeschosses. Ebenso reizvoll sind die offen gehaltenen und ineinanderfließenden Flächen von Kochen, Essen und Wohnen. Ein kompaktes Haus mit großer Raumwirkung, dafür steht das Wohnkonzept.

Weitere Informationen

Haustyp: Einfamilienhaus


Etagenanzahl: 2


Provisionspflichtig: ja


Provision: Provision auf das Grundstück


Anzahl Schlafzimmer: 3


Anzahl Badezimmer: 2


Barrierefrei: ja


Gäste-WC: ja


Qualität der Ausstattung: gehoben


Baujahr: 2026


Bauphase: Haus in Planung (projektiert)


Verfügbar ab: 2026


Bodenbelag: nach Wunsch


Zustand: Haus in Planung (projektiert)


Ihr Ansprechpartner

Julian Schiebert - Handelsvertretung der RENSCH-HAUS GMBH
Herr Julian Schiebert

Dorfstraße41 b
14621 Schönwalde-Glien
Telefon: +49 176 555 552 88


Objekt-Adresse

12559 Berlin
Videos zum Objekt

QR-Code