Schwerin:
Elegant. Außergewöhnlich. Einzigartig. – Wohnen in Seenähe
Objekt-Nr.: 74143-566




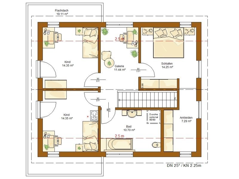
Grundriss

Grundriss















Preis:
1.420.000 €
Wohnfläche ca.:
241 m²
Grundstück ca.:
5.350 m²
Zimmeranzahl:
5
Die Stadtvilla ist ein Statement in Sachen Geschmack und Eleganz.
Nicht nur äußerlich eine Klasse für sich - auch im Innenbereich werden neue Maßstäbe gesetzt: Besonders beeindruckend ist die großzügige und moderne Interpretation von Kochen und Essen. Hier führt eine geradläufige Treppe nach oben in die offene, zentral angeordnete Galerie, die sich wie eine Brücke über den Essbereich spannt. Diese repräsentative Konstellation mit einem fast sechs Meter hohen Luftraum und großen Glasflächen in der Fassade setzen einen besonders beeindruckenden Akzent. Ein weiteres Highlight: der über 50 m² große Bereich, der einzig und allein für die Eltern reserviert ist. Mit Schlafzimmer, zwei Ankleidezimmern und Wellnessbad mit integrierter Sauna. Besonderen Komfort bieten außerdem die beiden üppig dimensionierten Kinderzimmer: Jedes von ihnen verfügt über ein eigenes Dusch-WC. Mit diesem Haus bekommt jeder Bewohner seinen eigenen und unabhängigen Bereich zur freien Entfaltung.
Haustyp: Einfamilienhaus
Etagenanzahl: 2
Provisionspflichtig: ja
Provision: Provision auf das Grundstück
Nutzfläche ca.: 310 m²
Anzahl Schlafzimmer: 4
Anzahl Badezimmer: 2
Terrasse: 2
Loggia: 2
Einliegerwohnung: ja
Barrierefrei: ja
Gäste-WC: ja
Sauna: ja
Wintergarten: ja
Ausblick: Seeblick
Qualität der Ausstattung: Luxus
Baujahr: 2026
Bauphase: Haus in Planung (projektiert)
Verfügbar ab: 2026
Bodenbelag: nach Wunsch
Zustand: Haus in Planung (projektiert)
Das könnte Ihnen auch gefallen

Julian Schiebert - Handelsvertretung der RENSCH-HAUS GMBH
Herr Julian Schiebert
Dorfstraße41 b
14621 Schönwalde-Glien
Telefon: +49 176 555 552 88
15755 Schwerin
Dahme-Spreewald
Brandenburg





































