Schwerin:
Traumhaus in Toplage
Objekt-Nr.: 74143-564


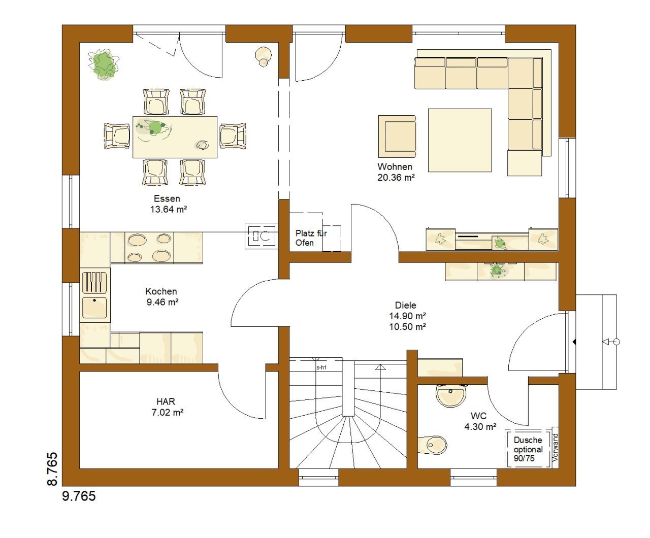
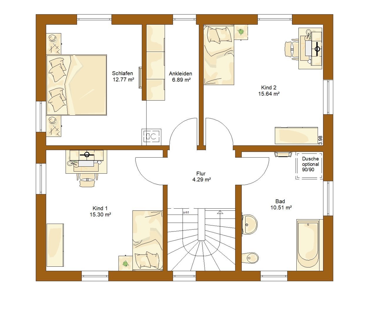
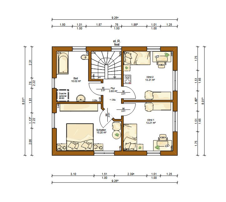
Grundriss














Preis:
1.200.000 €
Wohnfläche ca.:
147 m²
Grundstück ca.:
5.350 m²
Zimmeranzahl:
4
Das Traumhaus mit dem Naturerlebnis
Die windgeschützte und einladend gestaltete Terrasse bildet das räumliche und optische Zentrum dieses extravaganten Bungalows.
Die geschickte Raumaufteilung erlaubt eine hohe Flexibilität - für junge Familien ebenso wie zum altersgerechten Wohnen.
Alle wesentlichen Räume des täglichen Lebens, wie die Küche, das Wohn-/ Esszimmer und auch das Schlafzimmer, sind zu der Terrasse ausgerichtet. Nie wieder Treppen steigen. Die Terrasse sorgt zudem für einen fließenden Übergang zwischen Haus und Garten und ist somit ein idealer Ort der Entspannung.
Haustyp: Bungalow
Etagenanzahl: 1
Provisionspflichtig: ja
Provision: Provision auf das Grundstück
Nutzfläche ca.: 157 m²
Anzahl Schlafzimmer: 3
Anzahl Badezimmer: 2
Terrasse: 1
Barrierefrei: ja
Seniorengerecht: ja
Gäste-WC: ja
Keller: nein
Als Ferienhaus geeignet: ja
Ausblick: Seeblick
Qualität der Ausstattung: Luxus
Baujahr: 2026
Bauphase: Haus in Planung (projektiert)
Verfügbar ab: 2026
Bodenbelag: nach Wunsch
Zustand: Haus in Planung (projektiert)
Das könnte Ihnen auch gefallen
Ihre Eigenen 4 Wände in Nauen
Mit Eigenleistung zum eigenen Haus

Julian Schiebert - Handelsvertretung der RENSCH-HAUS GMBH
Herr Julian Schiebert
Dorfstraße41 b
14621 Schönwalde-Glien
Telefon: +49 176 555 552 88
15755 Schwerin
Dahme-Spreewald
Brandenburg







































