Petershagen:
Mit Eigenleistung zum eigenen Haus
Objekt-Nr.: 74143-560

3D Eingang

3D Terrasse

Imagebild Effizienzhaus 40

Grundriss_EG

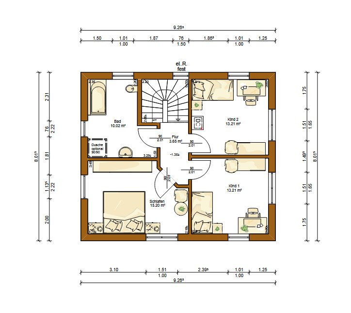
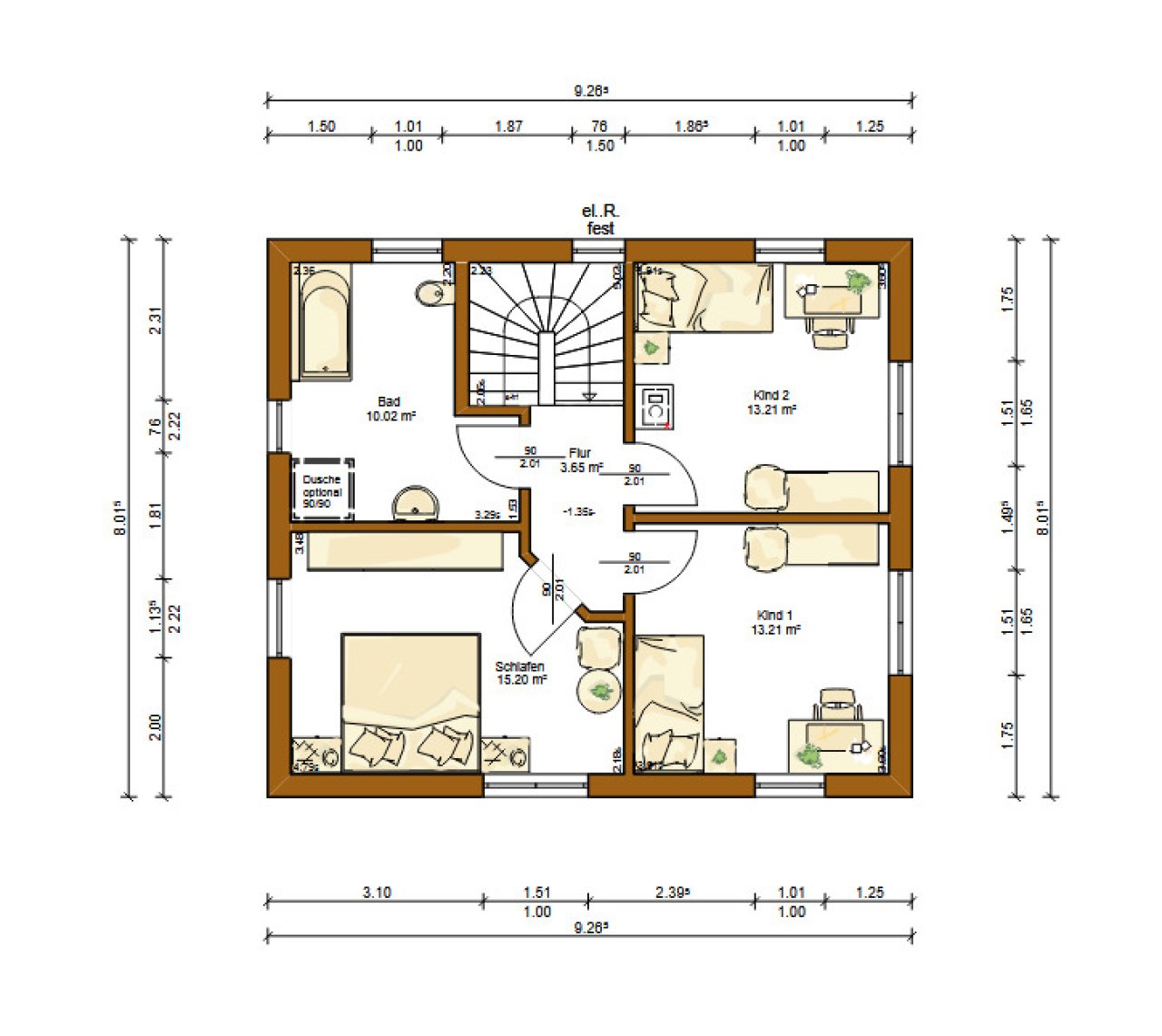
Grundriss_OG

Weblogo 2024 6090001516 Rensch-Haus GmbH

Ansicht_1

Ansicht_2

Ansicht_3

Ansicht_4

Grundstuecke 800x600px

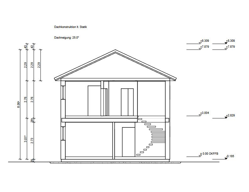
Schnitt_1

Schnitt_2

wohnen-essen

kinderzimmer

kinderzimmer-2

Referenzbuch 800x600px

Julian Schiebert


















Preis:
509.000 €
Wohnfläche ca.:
111 m²
Grundstück ca.:
610 m²
Zimmeranzahl:
4
Kompakt. Clever. Komfortabel.
---
Diese charmante Stadtvilla wurde perfekt auf das Grundstück zugeschnitten – mit rund 111 m² Wohnfläche bietet sie erstaunlich viel Platz für die ganze Familie. Besonders hervorzuheben: drei vollwertige Schlafzimmer im Obergeschoss, ein großzügiges Badezimmer mit Wanne und Dusche sowie ein helles, offenes Erdgeschoss, das modernes Wohnen zelebriert.
Im Erdgeschoss empfängt Sie ein einladender Eingangsbereich mit Gäste-WC und Hauswirtschaftsraum. Die Küche ist clever U-förmig geplant – mit direktem Übergang in den Wohn- und Essbereich. Bodentiefe Fenster sorgen hier für viel Licht und direkten Zugang zur Terrasse und dem Garten.
Das Obergeschoss überzeugt mit einem durchdachten Schnitt: Das Elternschlafzimmer liegt angenehm ruhig zum Garten, während die beiden Kinderzimmer gleich groß sind – ein echter Pluspunkt für Familien. Das Bad bietet neben der Wanne auch eine separate Dusche – ideal für den morgendlichen Familienbetrieb.
Kurzum: Dieses Haus beweist, dass sich auf 111 m² alles unterbringen lässt, was das Familienleben braucht – ohne Kompromisse bei Wohnkomfort oder Stil.
Haustyp: Einfamilienhaus
Etagenanzahl: 2
Provisionspflichtig: ja
Provision: Provision auf das Grundstück
Nutzfläche ca.: 115 m²
Anzahl Schlafzimmer: 3
Anzahl Badezimmer: 2
Gäste-WC: ja
Qualität der Ausstattung: gehoben
Baujahr: 2026
Bauphase: Haus in Planung (projektiert)
Verfügbar ab: 2026
Bodenbelag: nach Wunsch
Zustand: Haus in Planung (projektiert)
Das könnte Ihnen auch gefallen
Traumhaus in Toplage

Julian Schiebert - Handelsvertretung der RENSCH-HAUS GMBH
Herr Julian Schiebert
Dorfstraße41 b
14621 Schönwalde-Glien
Telefon: +49 176 555 552 88
15345 Petershagen
Märkisch-Oderland
Brandenburg
