Falkensee:
Bauen Sie Ihr Traumhaus
Objekt-Nr.: 74143-533


Grundriss

Grundriss





Preis:
752.500 €
Wohnfläche ca.:
146 m²
Grundstück ca.:
648 m²
Zimmeranzahl:
4
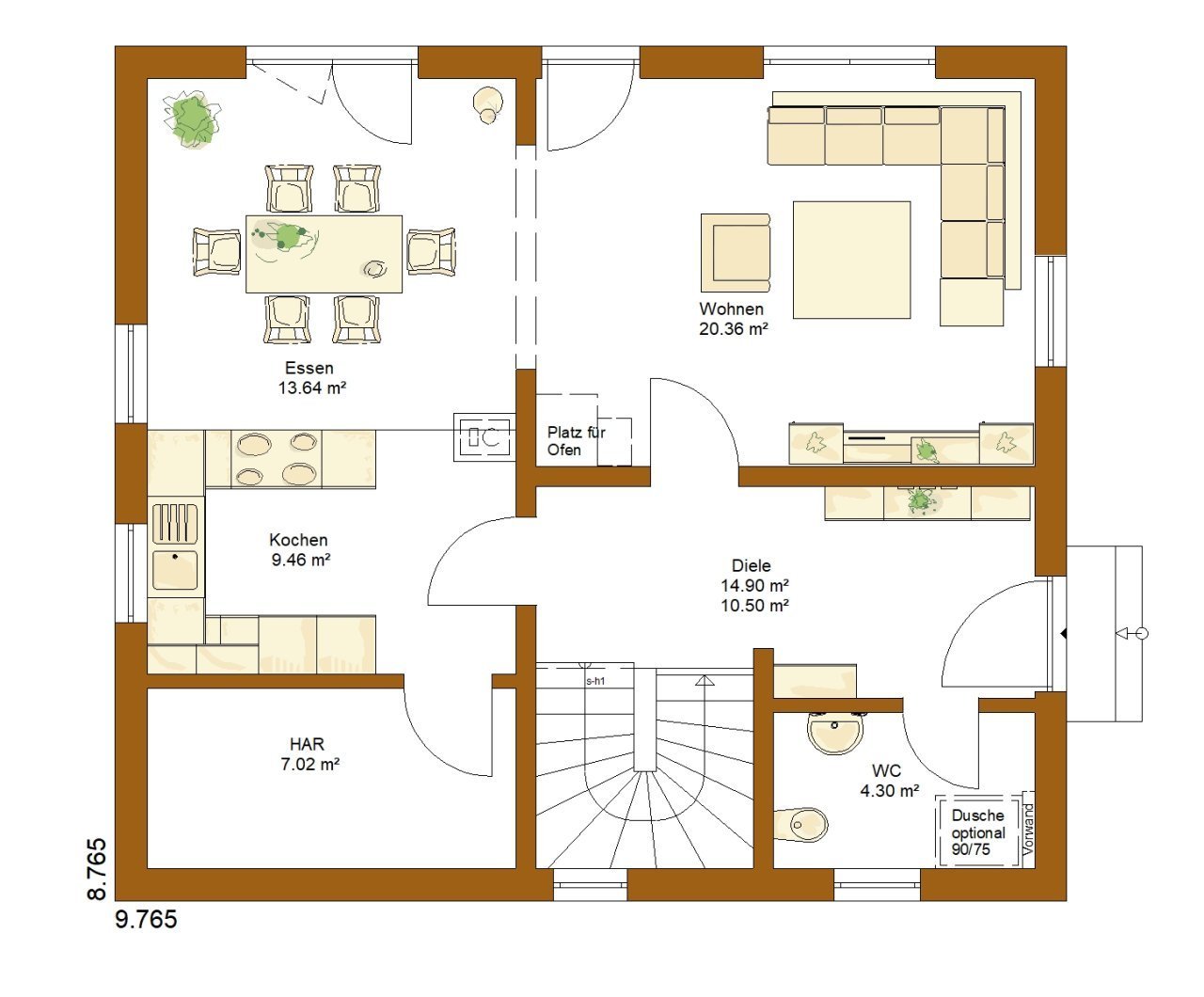
Ungewöhnlich und auffallend ist die Raumaufteilung dieser Stadtvilla.
Hier können Sie modern und stilsicher wohnen. Das Esszimmer und die Küche bilden einen eigenen Bereich im Haus und gehen fließend ineinander über. Damit bilden Sie den idealen Rahmen für das tägliche Familienleben und auch die perfekte Räumlichkeit für gemütliche Stunden. Das Wohnzimmer hingegen ist in diesen Bereich nicht integriert und bietet somit einen gemütlichen Ort der Ruhe und Entspannung.
Haustyp: Einfamilienhaus
Etagenanzahl: 2
Provisionspflichtig: ja
Provision: Provision auf das Grundstück
Nutzfläche ca.: 169 m²
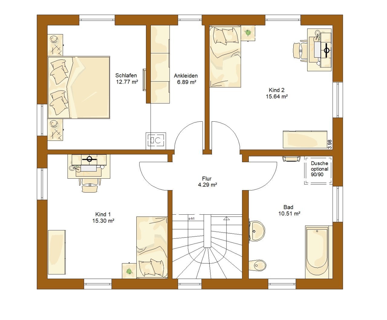
Anzahl Schlafzimmer: 3
Anzahl Badezimmer: 2
Balkon: 1
Terrasse: 1
Gäste-WC: ja
Qualität der Ausstattung: gehoben
Baujahr: 2026
Bauphase: Haus in Planung (projektiert)
Verfügbar ab: 2026
Bodenbelag: nach Wunsch
Zustand: Haus in Planung (projektiert)
Das könnte Ihnen auch gefallen

Julian Schiebert - Handelsvertretung der RENSCH-HAUS GMBH
Herr Julian Schiebert
Dorfstraße41 b
14621 Schönwalde-Glien
Telefon: +49 176 555 552 88
14612 Falkensee
Havelland
Brandenburg















































